Mesto vyhlásilo ponukové konanie na zimnú arénu

Myšlienka sa posúva do praktickej roviny. Mesto vyhlásilo súťaž na prenájom pozemku za účelom výstavby zimnej arény. Uchádzači môžu predkladať svoje ponuky najneskôr do 17. mája. Následne komisia odporučí víťazný návrh, ktorý by mohol byť podľa primátora prerokovaný poslancami v júni.

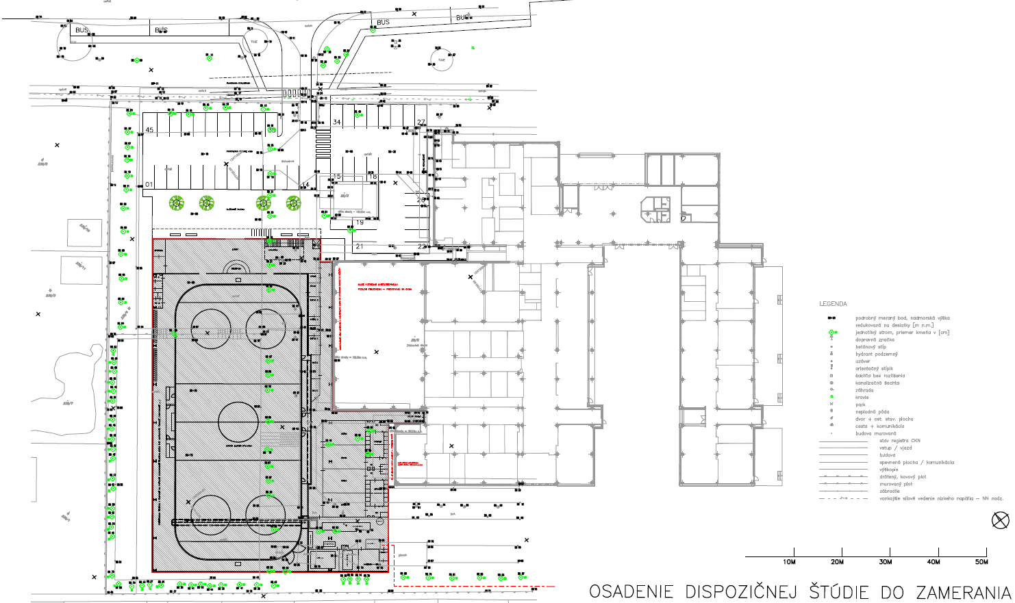
Zimná aréna sa navrhuje umiestniť na pozemku starých hádzanárskych ihrísk susediaci so ZŠ na Záhoráckej ulici, kde sa v súčasnosti provizórne parkuje. Pozemok má byť účelovo viazaný na výstavbu krytej ľadovej plochy o rozmeroch 26x56 m, zabraná plocha má byť cca 5000 m2.

Vzhľadom na navrhovaný účel prenájmu výstavby je ponuka nájmu v rozsahu 50 rokov za ročnú výšku nájomného 1 €.
 
Uchádzači musia mimo iného predložiť:
  • podnikateľský zámer - vypracovanú architektonickú štúdiu krytej ľadovej plochy (zimného štadióna) spolu s predložením vizuálneho návrhu podla priloženej dispozičnej štúdie,
  • záväzný návrh výšky predpokladanej investície v štrukturovanej podobe (predprojektová príprava, projektová dokumentácia a inžiniering, realizácia stavby) v súvislosti s vybudovaním krytej ľadovej plochy (zimného štadióna) a súvisiacej infraštruktúry,
  • podmienky prevádzkovania novovybudovanej krytej ľadovej  plochy (zimného štadióna) - záväzok záujemcu zabezpečovať prevádzku zimného štadióna počas celej doby trvania nájmu, časový harmonogram, dostupnosť pre verejnosť, úhrada nákladov na prevádzku a iné,
  • návrh technického riešenia, ktorým bude umožnené odoberať zvyškové teplo vzniknuté pri prevádzke zimného štadióna na vykurovanie ZŠ Záhorácka,
  • referencie o vybudovaných obdobných projektoch v predchádzajúcich 5 rokoch, ak sú u záujemcu dostupné.

Mesto si v súťaži vyhradilo možnosť pre budúci vstup do vlastníckeho práva k vybudovanému objektu zimného štadióna.

Uchádzači môžu predkladať svoje ponuky najneskôr do 17. mája 2017.

Ľudia pre Malacky - 17.04.2017 - 5296 čítaní


pošli na vybrali.sme.sk pošli do vybrali.sme.sk


Pre pridanie komentára navštívte klasickú verziu nášho webu.

Komentáre k článku

05.12.2017 18:18:07 | nobody
Zimák vraj nakoniec v Malackách nebude. Je to pravda?


12.12.2017 20:58:18 | J.Říha
Dobrý deň, pôvodný investor, ktorý aj vyhral súťaž na prenájom pozemku, oznámil nepokračovanie v procese prípravy investície. Po negatívnom rozhodnutí mestského zastupiteľstve sa proces vrátil na úplný začiatok. Mrzí ma to, viac to však komentovať nebudem.

Poslancom som na minulotýždňovom stretnutí predložil dva návrhy na pokračovanie procesu prípravy zimnej haly. Ďalšie stretnutie budeme mať úvodom budúceho roka.


Počasie

Poskytuje In-počasie