Poslanci schválili projekt rozšírenia škôlky

Mesto plánuje rozšíriť škôlku na Záhoráckej ulici. Projektu dali zelenú aj poslanci mestského zastupiteľstva, ktorí na svojom štvrtkovom zasadnutí schválili žiadosť o dotáciu z eurofondov. Najbližšie budú poslanci rozhodovať o projekte výstavby detských jaslí.

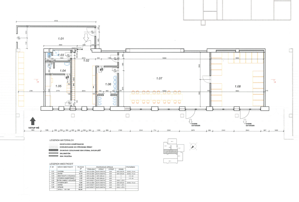
Kapacita materskej školy v Malackách sa môže rozšíriť pre ďalších 20 detí. S týmto cieľom spracoval mestský úrad dokumentáciu na rekonštrukciu priestorov starých klietkových šatní v Základnej škole na Záhoráckej ulici. Tie by boli nahradené skrinkami na chodbách.

Nové priestory škôlky by nadväzovali na už exitujúcu škôlku v tejto časti budovy. V nových priestoroch škôlky by bola herňa, spálňa, šatňa a sociálne zázemie pre deti a zamestnancov. Počíta sa aj s nákupom nového vybavenia a hračiek.

Schválený návrh dispozície nových priestorov škôlky.

Súčasťou diela by bola aj kompletná rekonštrukcia starého vnútorného átria, ktoré je dnes z veľkej časti predláždené. Átrium sa zazelenie, pribudnú nové chodníčky a hracie prvky.

Mestský úrad spracoval rekonštrukciu aj školského átria.

Peniaze na realizáciu by chcelo vedenie mesta získať z eurofondov. Projekt so žiadosťou o čerpanie dotácie s celkovými výdavkami za vyše 130 tisíc € schválili poslanci na svojom štvrtkovom zasadnutí. Poslanecký zbor by mal najbližšie zasadnúť vo februári, kedy budú rozhodovať o projekte výstavby nových detských jaslí.

Ľudia pre Malacky - 02.02.2019 - 3933 čítaní


pošli na vybrali.sme.sk pošli do vybrali.sme.sk


Pre pridanie komentára navštívte klasickú verziu nášho webu.

Komentáre k článku

Počasie

Poskytuje In-počasie